面積:365平米
設計師:杜海國


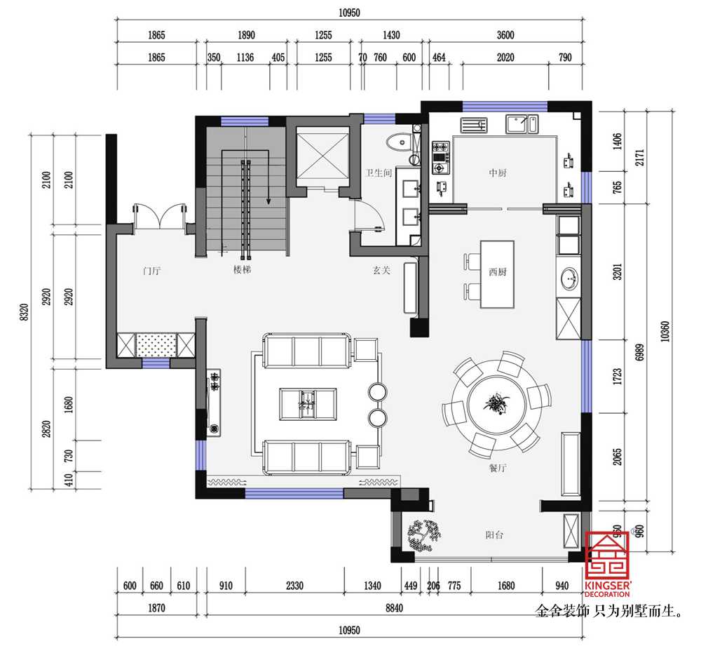
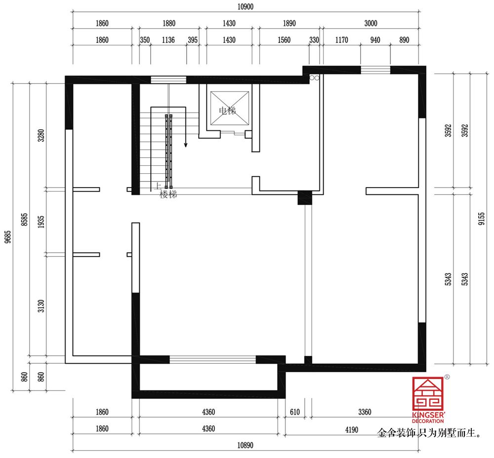
① 戶型方正、南北通透、三面采光,正如清風婉轉,陽光留戀。
② 功能劃分明確。入戶玄關,客廳、廚房與餐廳與觀景陽臺相連,空間光線明媚,清風徐徐。
缺點:
③ 客廳空間較小,占位比較尷尬。
④ 剩余空間窄長
改造:
① 將窄長空間合理利用劃分為中西廚。廚房餐廳南北相連,就餐、使用便利。就餐同時可以觀景。
② 將玄關走廊,客廳與餐廳相連弱化空間劃分,增大客廳感官上的空間擴大化。


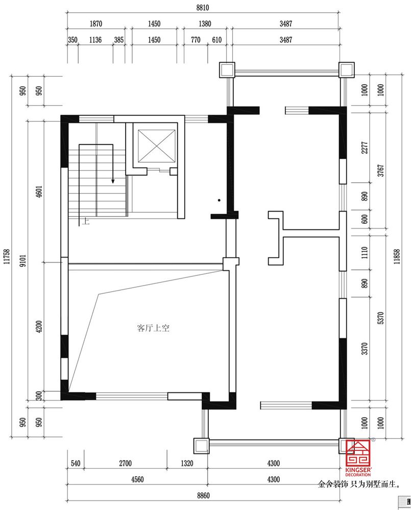
② 功能劃分明確,兩個臥室自帶陽臺,增加生活景致。
缺點:
③ 陽臺窄小,臥室空間分布不均
④ 臥室陽臺窗窄小。
改造:
① 打通了臥室陽臺門窗,改為推拉門,增加了臥室的采光度
② 陽臺進行綠植美化,可作為私人的綠色空間增添喜歡的綠植。


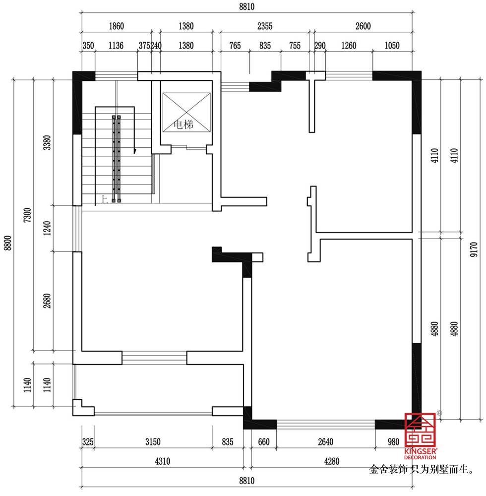
三樓戶型優點:
① 南北通透,采光通透,通風良好
② 相較與二樓有了一個公共空間,同時連接陽臺。
缺點:
③ 功能區域劃分不明確。
④ 空間部分浪費
改造:
① 豪華套件,區域劃分明確,動靜分離,衣帽間與衛生間分離。
② 衣帽間劃分為男士衣帽間與女士衣帽間。增加私密性,


缺點:
② 采光差,通風局部差。
改造:
① 合理利用采光通風好的進行設為保姆房.
② 利用采光不足增加影音室。合理利用采光與通風將天井附近區域劃分為茶室。